Jawa-1 Combined Cycle Gas Turbine power Plant – 1760MW
- Client :- Jawa Satu Power
-
Location :-
Indonesia
Overview
The Jawa-1 Combined Cycle Power Plant is a 1,760 MW LNG-fired facility located in Cilamaya, Karawang, West Java, Indonesia. As one of Southeast Asia’s largest and most advanced gas-fired power plants, it plays a vital role in strengthening the Java-Bali electricity grid.
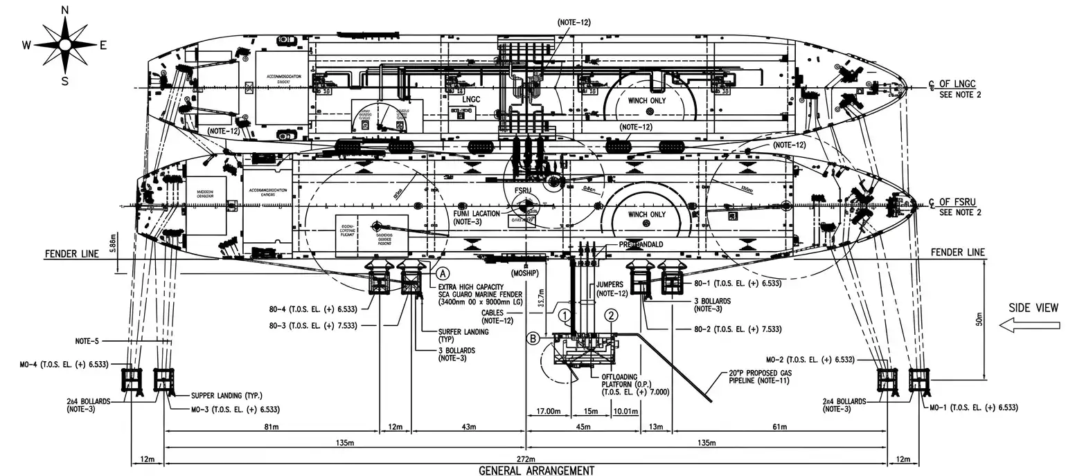
Powered by high-efficiency Combined Cycle Gas Turbine (CCGT) technology and supported by an integrated offshore Floating Storage Regasification Unit (FSRU), the project represents Indonesia’s first large-scale LNG-to-power development. Developed by PT Jawa Satu Power in partnership with Pertamina, Marubeni Corporation, and Sojitz Corporation, the plant has been delivering reliable, lower-carbon electricity to Perusahaan Listrik Negara (PLN) since 2022
| Characteristics |
|---|
| Engineering Services |
|---|
Services: ZEE Engineering Services were as follows:
1. FSRU Detailed Engineering
- Detailed design review and coordination of LNG storage and regasification systems
- Integration of mooring system, high-pressure gas send-out system, and safety systems
- Cryogenic piping, process instrumentation, and control system design review
- Interface management between FSRU and subsea gas pipeline
- Compliance with international marine, LNG, and safety standards
2. Subsea & Gas Receiving Facilities
- Design review of subsea gas pipeline from FSRU to onshore receiving station
- Gas metering, pressure regulating, and gas conditioning systems
- Hazard analysis and operability studies (HAZOP)
3. Onshore CCGT Power Plant Detailed Design
- Plant layout and plot plan optimization
- Civil and structural design review (foundations, turbine hall, cooling systems)
- Mechanical systems design (gas turbines, HRSG, steam turbine, balance of plant)
- Electrical systems (switchyard, transformers, grid interconnection)
- Instrumentation & Control (DCS, plant protection systems)
- Heat balance validation and performance guarantee review
4. Interface & Integration Management
- LNG-to-power integration coordination
- Fuel supply reliability analysis
- Technical risk assessment and mitigation planning
5. Construction & Commissioning Support
- Design clarification during construction
- Technical support for installation and pre-commissioning
- Performance testing and COD certification support
This integrated engineering consultancy ensured seamless coordination between offshore LNG infrastructure and onshore high-efficiency power generation, delivering a technically robust and reliable LNG-to-power solution for Indonesia’s energy network.